Wohnanlage

In Emprechting mit Garage

Geiersbergerstraße 3 | 4921 Hohenzell

Baubeginn: Jän 24

Erstbezug: Jän.26

Zahlen und Fakten

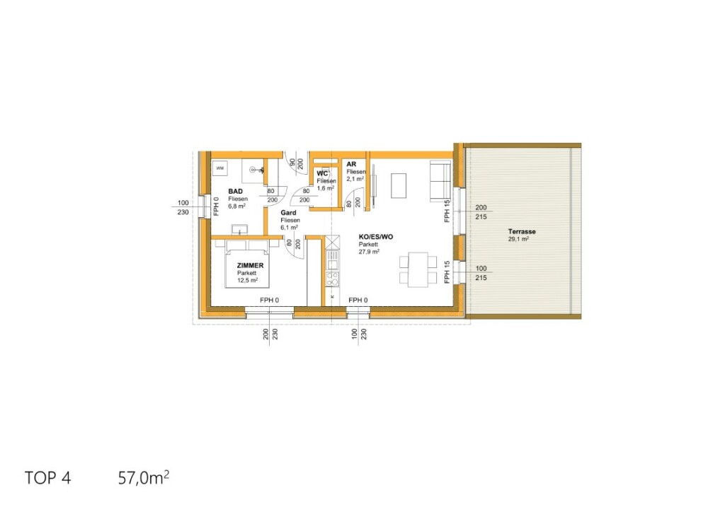
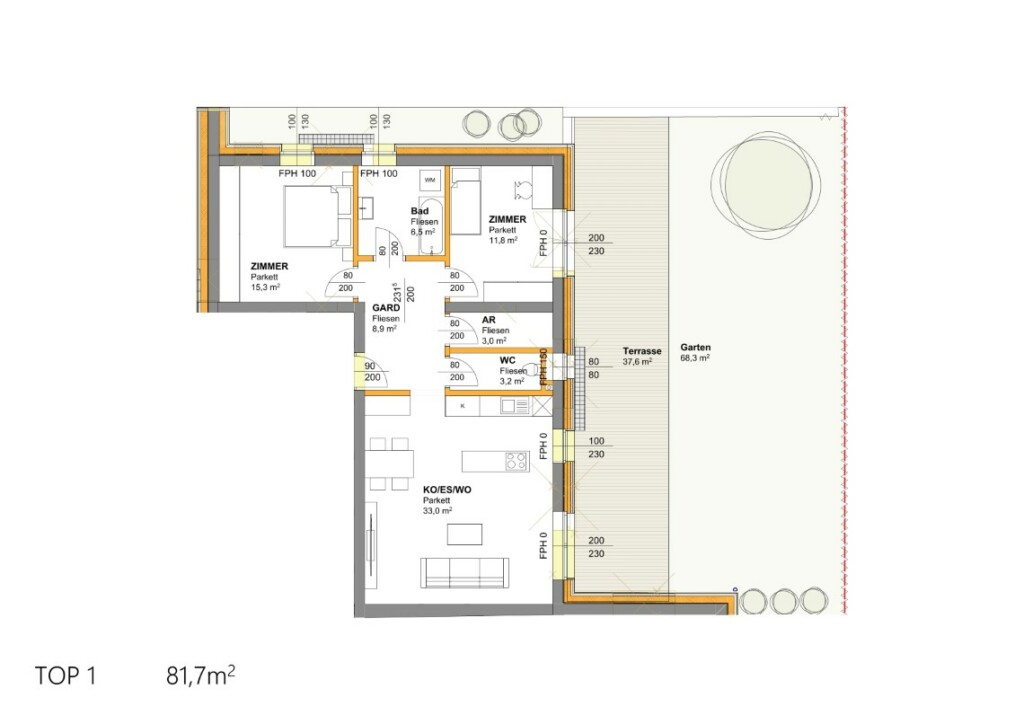
Flächen- und Raumaufstellung Top 1

Garderobe

8,9 m2

Abstellraum

3 m2

WC

3,2 m2

Wohnen Essen Küche

33 m2

Bad

6,5 m2

Zimmer

15,3 m2

Zimmer

11,8 m2

Wohnfläche gesamt

81,7 m2

Vorraum allgemein

27,5 m2

Fahrradraum

11,9 m2

Abstellraum

5,6 m2

Garage

62,8 m2

Terrasse

37,6 m2

Garten

68,3 m2

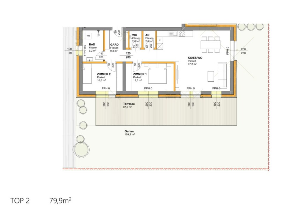
Flächen- und Raumaufstellung Top 2

Garderobe

9,3 m2

Abstellraum

2 m2

WC

2 m2

Wohnen Essen Küche

37,2 m2

Bad

6,2 m2

Zimmer

10,6 m2

Zimmer

12,6 m2

Wohnfläche gesamt

79,9 m2

Vorraum allgemein

27,5 m2

Fahrradraum

11,9 m2

Abstellraum

5,6 m2

Garage

62,8 m2

Terrasse

37,2 m2

Garten

109,3 m2

Verkaufspreis

bei Eigennutzung:

TOP 1

ab € 364.000,-

TOP 2

ab € 364.000,-

Im Kaufpreis enthalten: Alle Anschlussgebühren wie Wasser, Kanal, Strom, Nahwärme und eine Garage

Im Kaufpreis nicht enthalten: 1,5% Vertragserrichtungskosten, 4,6% Grundbuchseintragung und Grunderwerbssteuer, Nutzwertgutachten im Sinne des WEG 2002 idgF

Verfügbarkeit

TOP 1

Frei

TOP 2

Frei

TOP 3

Verkauft

TOP 4

Verkauft