Doppelhaus

in Tumeltsham mit Carport

Spitzerhöhe 27 | 4911 Tumeltsham

Baubeginn: Jän 25

Erstbezug: Jän.26

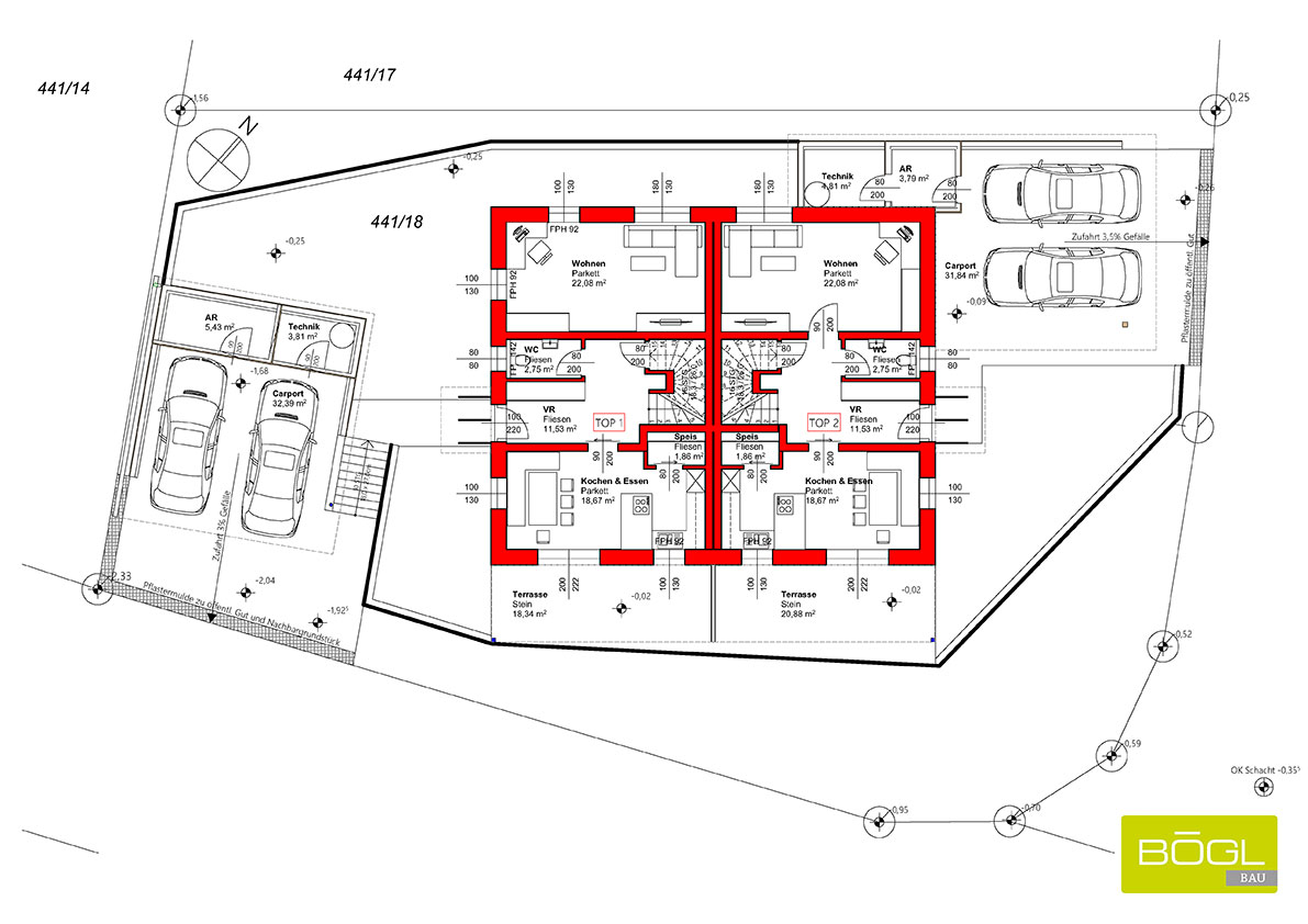
Zahlen und Fakten

Flächen- und Raumaufstellung

Wohnflächen: EG

Vorraum

10,54 m2

WC

2,81 m2

HWR

7,5 m2

Wohnen Essen Küche

36,37 m2

Gesamt EG

57,22 m2

Wohnflächen: OG

Kind 1

10,44 m2

Kind 2

9,65 m2

Gang

6,09 m2

Bad

9,45 m2

Eltern und Schrank

20,57 m2

Gesamt OG

56,2 m2

Wohnfläche gesamt

113,42 m2

Terrasse

20,88 m2

Carport

31,84 m2

Technik

4,81 m2

Abstellraum außen

3,79 m2

Verkaufspreis

bei Eigennutzung

ab € 485.000,-

Im Kaufpreis enthalten: Alle Anschlussgebühren wie Wasser, Kanal, Strom, Nahwärme und eine Garage

Im Kaufpreis nicht enthalten: 1,5% Vertragserrichtungskosten, 4,6% Grundbuchseintragung und Grunderwerbssteuer, Nutzwertgutachten im Sinne des WEG 2002 idgF

Verfügbarkeit

Doppelhaushälfte 1

Verkauft

Doppelhaushälfte 2

Frei

Erdgeschoss

Obergeschoss