Unternehmen
Über uns
Unser Team
Leistungen
Referenzen
Kontakt
Unternehmen
Über uns
Unser Team
Leistungen
Referenzen
Kontakt
Unternehmen
Über uns
Unser Team
Leistungen
Referenzen
Kontakt
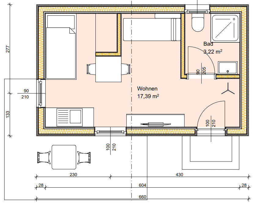
Tiny Haus
Interesse am Bögl Tiny Haus? Wir freuen uns von Ihnen zu hören!
Zurück
Poolhaus
Renovierung eines Vorbaus
Nächster