Doppelhaus

in Waldzell mit Garage

Katzenbach 32 | 4924 Waldzell

Baubeginn: Jän 25

Erstbezug: Jän.26

Zahlen und Fakten

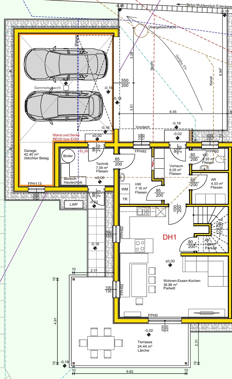
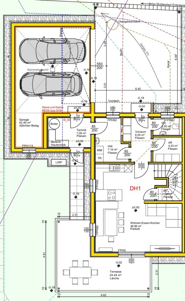
Wohnflächen: EG

Vorraum

6,05 m2

Technik

7,09 m2

HWR

7,16 m2

WC

2,55 m2

Abstellraum

4,03 m2

Abstellraum u. Stiege

1,88 m2

Wohnen Essen Küche

36,86 m2

Gesamt EG

65,62 m2

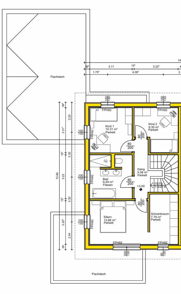
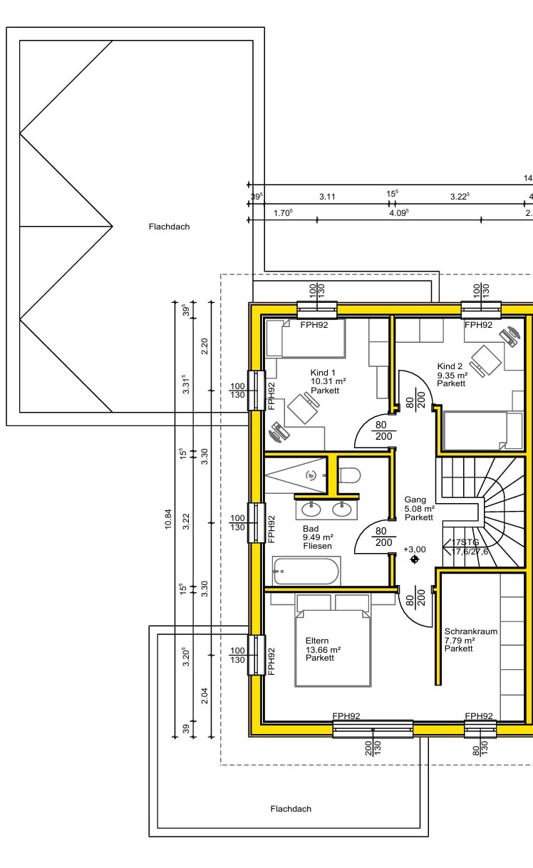
Wohnflächen: OG

Gang

5,08 m2

Eltern

13,66 m2

Schrankraum

7,79 m2

Bad

9,49 m2

Kind 1

12,83 m2

Büro

6,83 m2

Gesamt OG

55,68 m2

Wohnfläche gesamt

121,3 m2

Terrasse

24,44 m2

Garage

42,4 m2

Verkaufspreis

bei Eigennutzung

ab € 439.000,-

Im Kaufpreis enthalten: Alle Anschlussgebühren wie Wasser, Kanal, Strom, Nahwärme und eine Garage

Im Kaufpreis nicht enthalten: 1,5% Vertragserrichtungskosten, 4,6% Grundbuchseintragung und Grunderwerbssteuer, Nutzwertgutachten im Sinne des WEG 2002 idgF

Verfügbarkeit

Doppelhaushälfte 1

Verkauft

Doppelhaushälfte 2

Frei

Erdgeschoss

Obergeschoss